44444免费观看高清电视剧直播-444444在线观看免费高清电视剧-444444影院免费播放电视剧大全下载-4444444444免费观看电视剧

收藏本站 | 在線留言 |網站地圖 |企業分站歡迎來到科洛結構自防水技術(深圳)有限公司!

logo

科洛結構自防水系統
混凝土內摻科洛無機納米抗裂防滲劑+外噴永凝液DPS防水劑。
50年免費維修-無機不老化、裂縫自修復,解決開裂不密實問題。

防水劑咨詢139-2289-6181

工期節省工期節省
99%
成本節省成本節省
40%
壽命提高壽命提高
400%

永凝液DPS
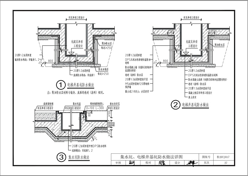
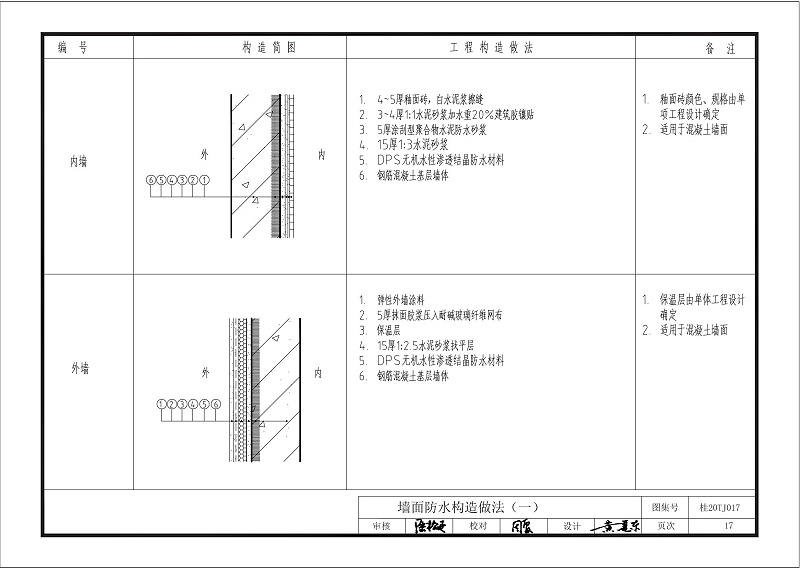
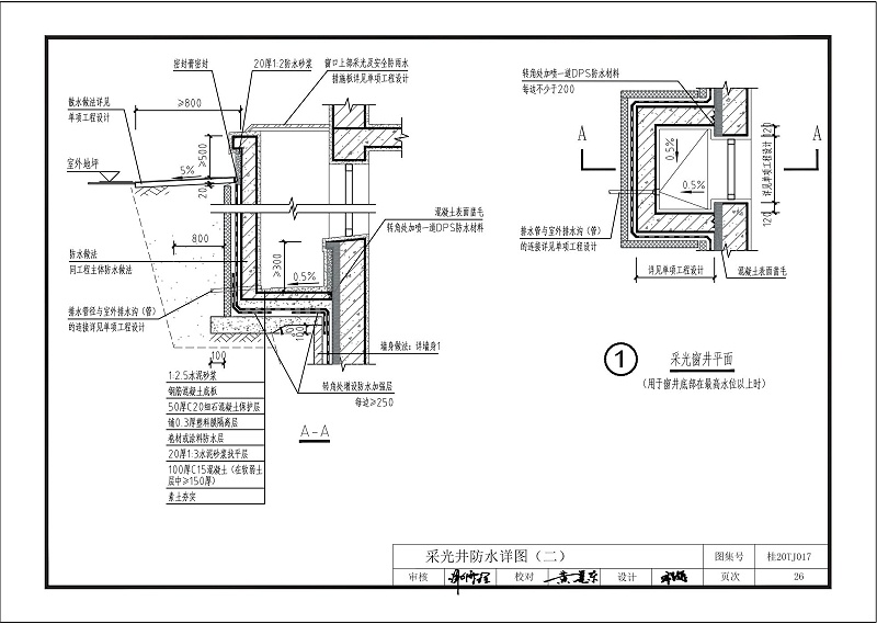
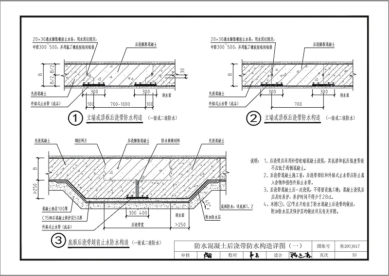
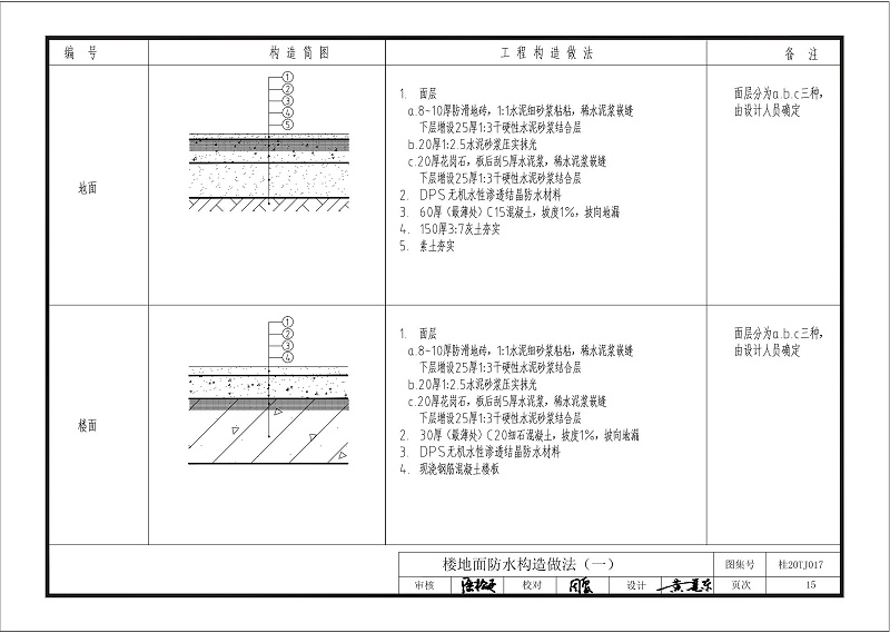
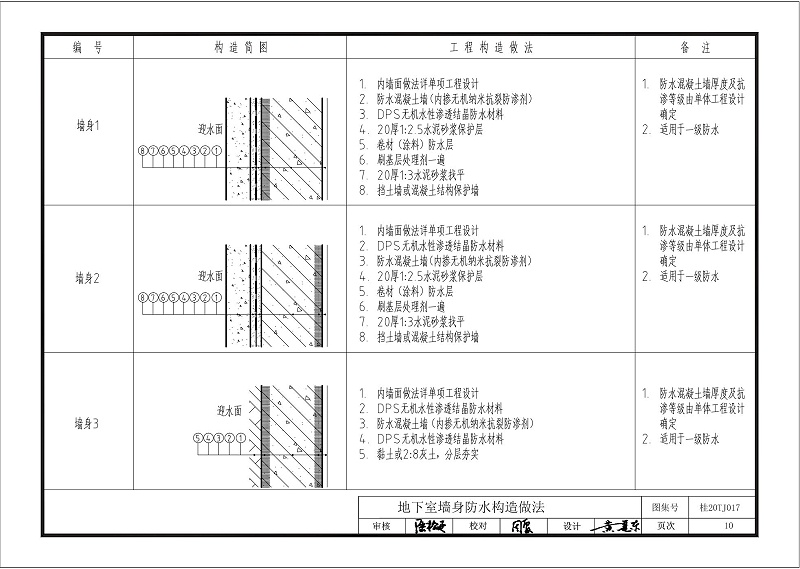
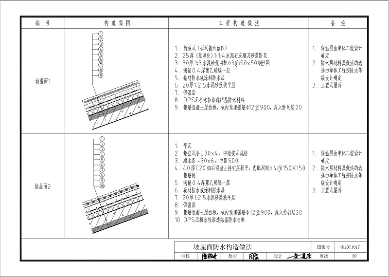
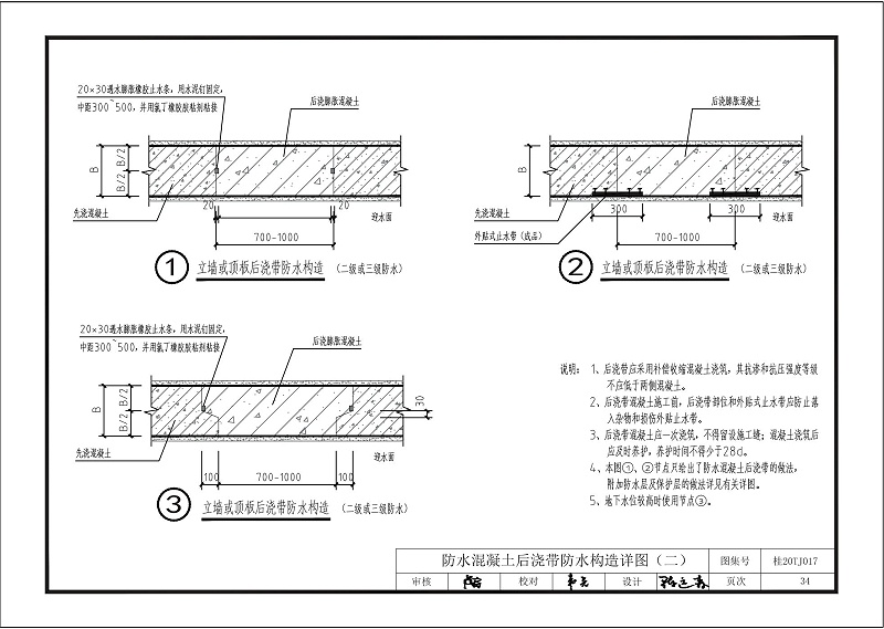
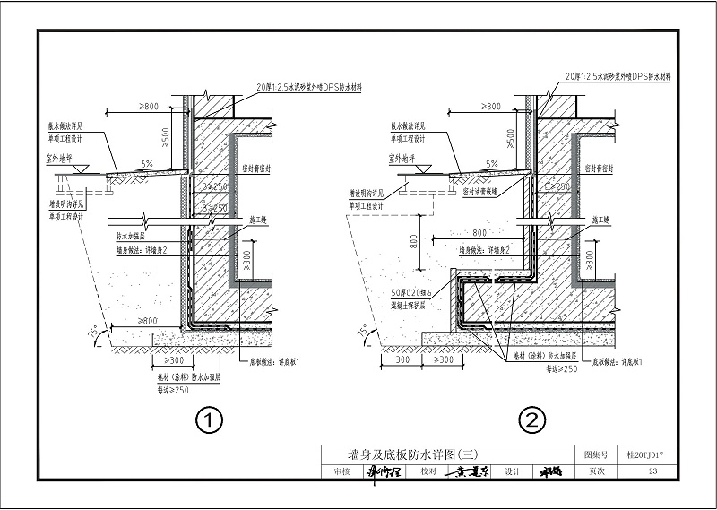
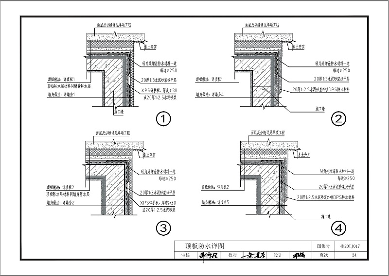
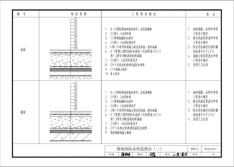
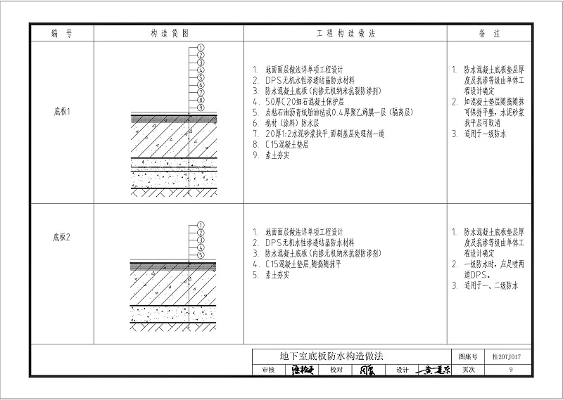
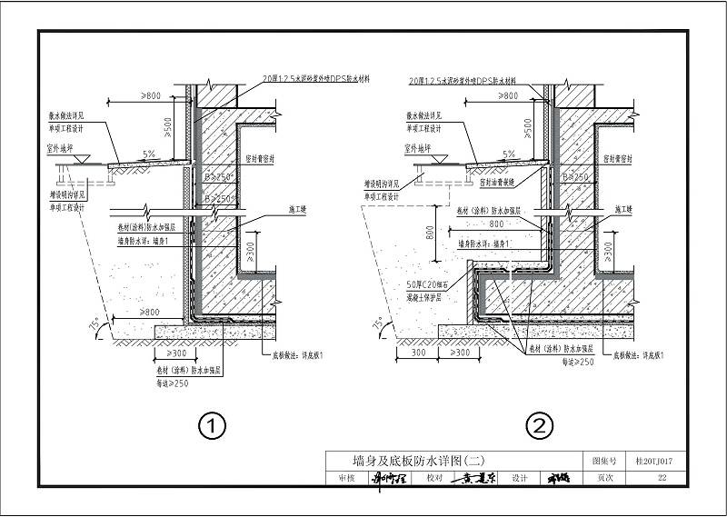
科洛(kelo)結構自防水圖集
返回列表 來源: 發布日期: 2021.06.23 瀏覽次數:0

聯系科洛

  • 139-2289-6181
  • 電話: 0755-84825823
  • 傳真:0755-84825823
  • 地址:深圳市龍崗區南聯村龍崗大道6001號華特大廈803
科洛結構自防水技術(深圳)有限公司版權所有 備案號:粵ICP備17091046號 粵公網安備 44030702000881號
咨詢